티스토리 뷰
목차
수원 영통 테크트리, 변호사 사무실인테리어 견적
오늘은 수원 영통 테크트리, 변호사 사무실인테리어 견적으로 제안드렸던 3D 이미지를 공개하겠습니다. 전문성이 중요한 법무법인 사무실의 경우 인테리어 또한 전문성이 느껴지면서 신뢰를 줄 수 있는 분위기로 꾸며주는 것이 좋습니다.
그래서 일반적으로 블랙, 화이트, 블루 그리도 우드 소재를 쓰는 인테리어가 주를 이루다 보니 인테리어가 비슷해질 수 있지만 916디자인은 고객님의 니즈를 반영하고 배치와 디자인에 차별성을 둬 디자인설계부터 남다른 퀄리티 높은 사무실로 제안드리고 있습니다.
3D


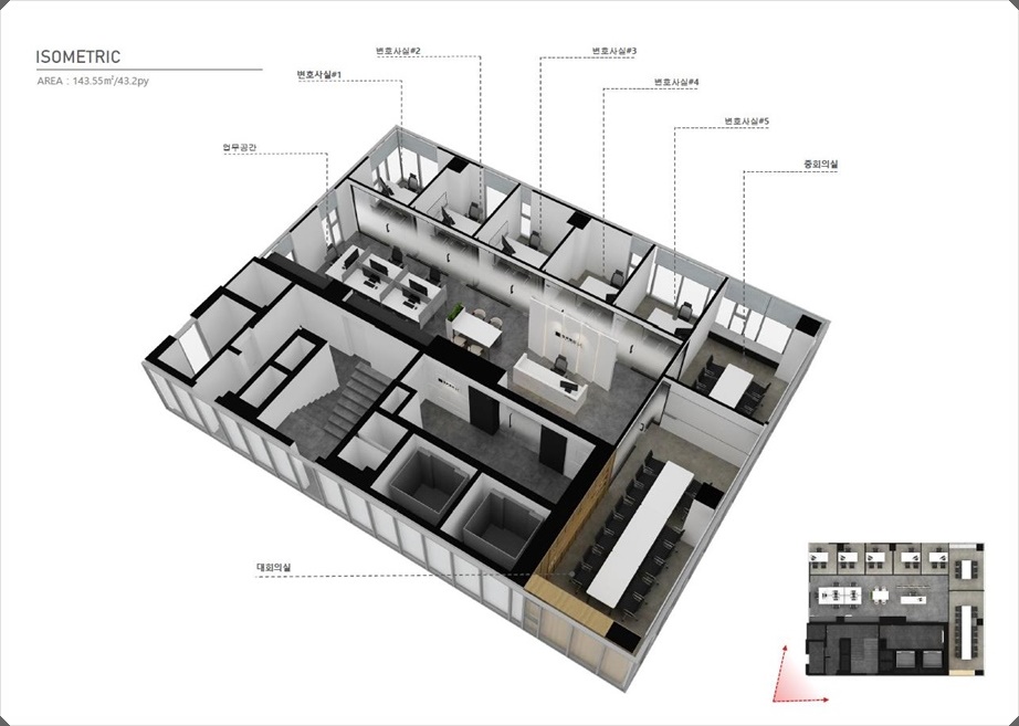
대형 면적의 사무실일 경우 인테리어를 할 때 매우 조직적이면서 계획적인 설계를 해야 하는데요, 면적이 넓다고 두서없이 이것 저것 배치하다 보면 부산스럽고 혼잡한 평면이 나올 수 있기 때문이죠. 그래서 916디자인은 소형이든 대형이든 사무실 인테리어를 의뢰받으면 최적의 배치로 1:1 맞춤 인테리어를 제공해드리고 있답니다. 디자인설계가 나오면 이를 평면 설계도와 3D 이미지로 작업해 보여드리고 있으니 이를 적극적으로 활용해 보시기 바랍니다.

보시는 도면은 아이소메트릭으로 작업한 설계도면으로 위에서 내려다 보이는 시각으로 실의 구성과 사이즈 그리고 적용 소재 등을 확인할 수 있습니다. 엘리베이터를 단독으로 사용할 수 있어 엘리베이터에서 내린 공간부터 로비로 설정해 입구 파사드를 계획했습니다.
내부는 라운지 공간과 사무 공간으로 나누고 벽면을 따라 개별 사무실을 계획하고 입구와 가까운 측면에 대회의실 및 소회의실을 배치했습니다. 수원 영통 테크트리에 입주 예정이신 분들 중 변호사 사무실인테리어 견적을 알아보고 있으시다면 저희 916과 함께 고민을 끝내세요.

입구 파사드는 회사의 기업 브랜드를 자연스럽게 표출할 수 있는 공간으로 방문객들이 가장 처음 보는 공간이기 때문에 첫인상이 되기도 합니다. 그렇기 때문에 입구 파사드 디자인에 따라 회사 이미지가 바뀔 수도 있고 그에 따라 계약이 성사될 수도 있으며 클라이언트와의 회의사 잘 풀릴 수도 있답니다.
입구 파사드는 인테리어 견적에 포함되지 않고 추가로 비용이 발생되는 부분이라 고민하시는 분들이 많으신데요, 입구 파사드를 통해 브랜드 이미지 제고, 홍보 및 마케팅 등으로 활용할 수 있기 때문에 함께 제안을 드리고 있습니다.

안으로 들어가면 안내 데스크가 있어 회사 구성원 외의 외부인의 방문을 체크하고 동선을 제한하며 공간으로 안내하도록 했습니다. 특히, 요즘같이 방문객 열체크와 명단 관리가 중요한 시기에는 반드시 필요한 공간이라고 할 수 있죠.
심플한 디자인과 깔끔한 컬러를 적용해 시각적으로 편안하면서 고급스러운 공간이 되도록 했고 자재에서 주는 고급스러움과 간접조명의 은은함이 더해져 품격있는 분위기가 연출됐습니다. 화려하고 다채로운 디자인보다는 무게감있고 차분한 분위기는 신뢰감이 가고 믿을 수 있으며 대화를 나누기 편안한 공간을 만들 수 있죠.

공용 사무공간은 깔끔한 화이트 색상을 베이스로 진행해 전체적인 분위기가 쾌적하고 깨끗해 보입니다. 화이트와 잘 어울리는 그레이로 바닥을 설정하면 시각적으로 안정감을 가지며 차분한 인상을 줘 변호사 사무실과 잘 어울리는 분위기로 완성됩니다.
공용 업무공간 옆에는 탕비실 공간과 사무기기를 둘 수 있는 공간을 설정해 사용성과 편의성을 높였으며 인포데스크 옆에 대기를 하거나 휴식을 취할 수 있는 테이블 세트를 배치하고 펜던트형 조명을 계획해 심리적 안정을 꾀할 수 있도록 했습니다.

회의실은 우드톤을 적용해 따뜻하고 아늑하지만 화이트 & 블랙 테이블/체어를 배치해 모던하고 시크한 분위기를 조성하도록 했습니다. 벽면의 오픈형 선반과 천장 우드에서 통일감이 느껴지고 소재에서 오는 아늑함과 고급스러움을 느낄 수 있는 공간입니다.
유리 가벽으로 개방감을 주었고 매립등으로 화사하고 밝은 분위기를 조성할 수 있으며 벽면 화이트 보드로 사용성을 높였습니다. 수원 영통 테크트리에 입주하는 분들 중 변호사 사무실인테리어 견적을 알아보고 있다면 저희 916디자인으로 문의해 주세요.
#변호사 사무실인테리어 #사무실인테리어
공사문의 010-3235-8427
포트폴리오 바로가기▶916er.com
전화주시면 간단한 비용견적 상담부터 현장방문 미팅까지 진행하고 있습니다. 연락주세요.
2021.09.05 - [사무실인테리어] - 다산 블루웨일 회사 오피스 인테리어, 사무실시공비용은
다산 블루웨일 회사 오피스 인테리어, 사무실시공비용은
다산 블루웨일 회사 오피스 인테리어, 사무실시공비용은? 다산 블루웨일 회사 오피스 인테리어, 사무실시공비용은 얼마를 예산으로 잡으면 되는지에 대해 물어보시는 분들이 계십니다. 비단
dopamine7.com
2021.09.04 - [사무실인테리어] - 남양주 별내 동광비즈타워 지식산업센터 사무실인테리어 시공사례 및 견적
남양주 별내 동광비즈타워 지식산업센터 사무실인테리어 시공사례 및 견적
남양주 별내 동광비즈타워 지식산업센터 사무실인테리어 시공사례 및 견적 3D 오늘은 남양주 별내 동광비즈타워 지식산업센터 사무실인테리어 시공사례 및 견적에 대해 알려드리려고 합니다.
dopamine7.com
2021.09.03 - [사무실인테리어] - 성남 수정구 성남 고등 현대지식산업센터 인테리어, 사무실공사 전문업체
성남 수정구 성남 고등 현대지식산업센터 인테리어, 사무실공사 전문업체
성남 수정구 성남 고등 현대지식산업센터 인테리어, 사무실공사 전문업체 성남 수정구 성남 고등 현대지식산업센터 인테리어, 사무실공사 전문업체를 알아보고 있으시다면 디자인부터 시공까
dopamine7.com
2021.09.02 - [사무실인테리어] - 동탄 sh타임스퀘어2 사무실인테리어 공간분리 3D 디자인 설계도면
동탄 sh타임스퀘어2 사무실인테리어 공간분리 3D 디자인 설계도면
동탄 sh타임스퀘어2, 사무실인테리어 공간분리 3D 디자인 설계도면 3D 오늘은 동탄 sh타임스퀘어2에 적용하기 좋은 사무실인테리어 공간분리 3D 디자인 설계도면을 사례로 가져왔습니다. 가로
dopamine7.com
2021.09.01 - [사무실인테리어] - 김포 장기동 금광하이테크시티, 20평 30평 사무실인테리어 비용
김포 장기동 금광하이테크시티, 20평 30평 사무실인테리어 비용
김포 장기동 금광하이테크시티, 20평 30평 사무실인테리어 비용 3D 여러 지역에 지식산업센터가 건립되면서 김포 장기동 금광하이테크시티, 20평 30평 사무실인테리어 비용을 알아보시는 분들이
dopamine7.com
'사무실인테리어' 카테고리의 다른 글
| 가양역 태영 데시앙플렉스 지식산업센터 아파트형공장 사무실인테리어 (0) | 2021.09.10 |
|---|---|
| 가산 에이스 가산 포휴지식산업센터 사무실인테리어, 깔끔한 디자인 추천! (0) | 2021.09.09 |
| 의왕 삼동 더리브 비즈원, 대표이사실 회의실 사무실인테리어 (0) | 2021.09.08 |
| 시흥 매화 스마트스퀘어 지식산업센터 인테리어 3d 도면 및 무료견적 받기 (0) | 2021.09.07 |
| 다산 블루웨일 회사 오피스 인테리어, 사무실시공비용은 (0) | 2021.09.05 |
| 남양주 별내 동광비즈타워 지식산업센터 사무실인테리어 시공사례 및 견적 (0) | 2021.09.04 |
| 성남 수정구 성남 고등 현대지식산업센터 인테리어, 사무실공사 전문업체 (0) | 2021.09.03 |
| 동탄 sh타임스퀘어2 사무실인테리어 공간분리 3D 디자인 설계도면 (0) | 2021.09.02 |
- Total
- Today
- Yesterday
- 학원인테리어디자인
- 916디자인
- 오피스인테리어
- 미용실인테리어
- 헤어샵인테리어
- 사무실인테리어
- 지식산업센터인테리어
- 3D사무실인테리어
- 피티샵인테리어
- 사무실인테리어추천
- 사무실인테리어공사
- 사무실인테리어잘하는곳
- 학원인테리어
- 인천사무실인테리어
- 사무실인테리어후기
- interior
- 사무실인테리어비용
- 사무실인테리어업체
- 병원인테리어
- 사무실리모델링
- 회사인테리어
- 3D디자인
- 사무실인테리어전문
- 사무실인테리어견적
- 인테리어
- 인테리어디자인
- 사무실인테리어디자인
- 헬스장인테리어
- 사무실디자인
- 상가인테리어
| 일 | 월 | 화 | 수 | 목 | 금 | 토 |
|---|---|---|---|---|---|---|
| 1 | 2 | 3 | ||||
| 4 | 5 | 6 | 7 | 8 | 9 | 10 |
| 11 | 12 | 13 | 14 | 15 | 16 | 17 |
| 18 | 19 | 20 | 21 | 22 | 23 | 24 |
| 25 | 26 | 27 | 28 | 29 | 30 | 31 |
