티스토리 뷰
목차
중랑구 신내동 skv1센터 10평 20평 사무실인테리어도 느낌있게!
안녕하세요, 916디자인입니다. 오늘은 중랑구 신내동 skv1센터의 10평 20평 사무실인테리어도 느낌있게! 연출할 수 있는 방법에 대해 사례와 함께 소개해 드리겠습니다.
작은 사무실은 무조건 심플하고 단순하게 인테리어해야 한다는 생각을 많이 하고 있는데요, 좁은 면적의 사무실도 어떻게 디자인하고 구획하느냐에 따라 독창적이고 느낌있게 연출할 수 있습니다. 물론 이런 것들이 쉬운 일은 아니지만 저희같은 디자인력을 갖춘 전문 업체에 맡기신다면 좀 더 수월하게 진행하실 수 있으니 도움 받아 보시는 것도 좋은 방법이랍니다.
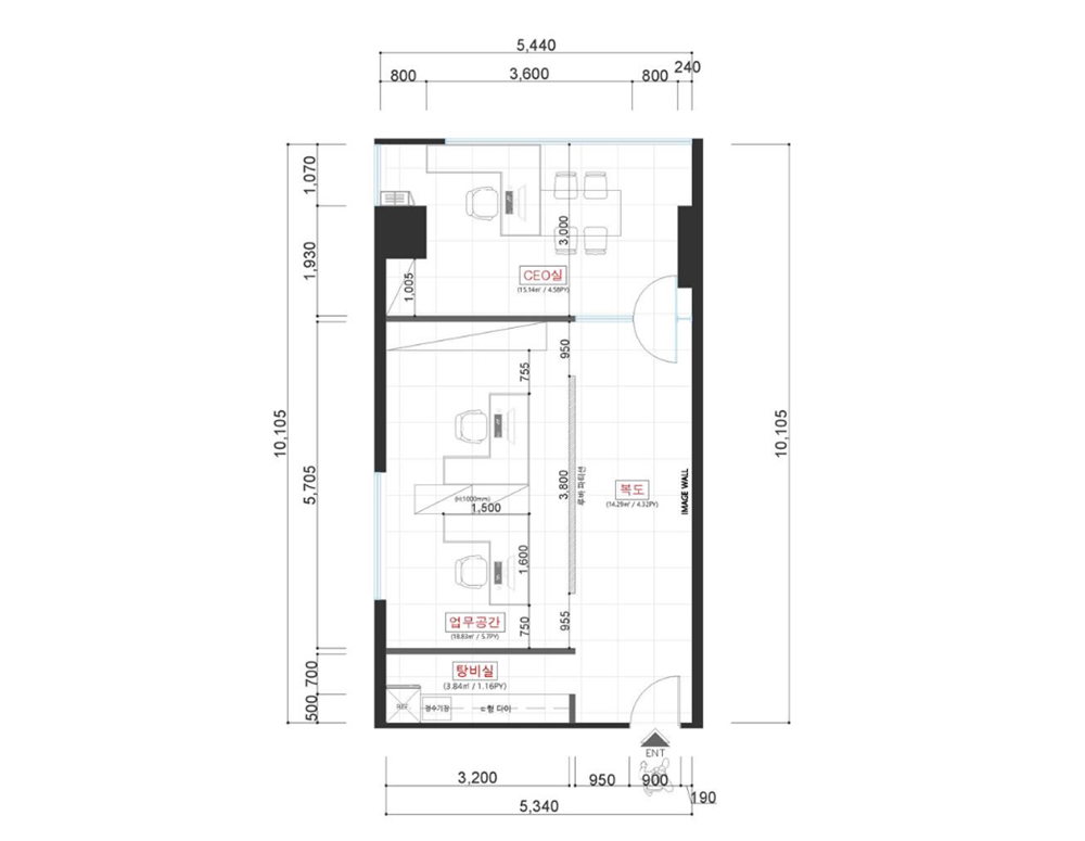
3D


도면과 3D 이미지를 봤을 때는 쉽게 디자인한 것 같아 보여도 현장의 컨디션에 따라 구획하고 동선을 짜고 조명을 연출해야 하기 때문에 배선, 배관, 공조시스템, 소방 설비 등에 대해서도 전문 지식을 갖춘 업체가 진행을 해야 디자인부터 시공 및 허가 등에 관련된 문제를 논스톱으로 해결할 수 있습니다.
이번 현장은 직사각형의 소형 사무실로 창이 있는 가장 안쪽부터 대표실, 공용 사무실, 탕비실로 구성되고 벽면과 공용 사무실 사이에 파티션을 두어 복도식으로 계획할 예정입니다.


창이 있는 가장 안쪽에 개인 사무공간을 배치해 안정적인 동선과 구도를 만들었고 창으로 들어오는 빛이 내부에까지 비칠 수 있도록 유리 가벽을 계획해 개방감과 쾌적성을 높일 수 있도록 제안드렸습니다. 대표실로 들어가는 복도에는 회사 로고를 선과 면으로 형상화한 디자인으로 인테리어하고 회사명과 로고를 부착해 가독성을 높이고 정체성을 부여했습니다.
일반적으로 회사의 이미지를 표현하는 이미지월은 입구측 내부에 계획되는 경우가 많은데요, 좁은 면적의 사무실일 경우 입구를 가리는 이미지월이 공간을 좁아보이게 할 수 있기 때문에 저희는 벽면에 디자인해 인테리어 요소로도 활용할 것을 제안드렸습니다.


사무실 가운데 위치한 공용 사무공간입니다. 입구로 들어오면 바로 진입되면서 업무 집중도를 떨어트릴 수 있다는 판단을 해 공간을 가리면서 구획하는 역할을 하는 파티션 형식의 가벽을 간살로 느낌있게 계획했습니다.
대신, 바닥에서 천장까지 목공 가벽을 세우는 것보다는 파티션 형식의 간살 가벽을 세워 공간의 답답함을 해소하고 냉난방 시스템을 공유할 수 있도록 했습니다. 좁은 공간에 가벽을 잘못 계획하면 천장의 배선, 배관, 공조시스템에 손을 대야 하고 특히 소방 시설을 옮기거나 추가해야 하는데 그렇게 되면 공사가 복잡해지고 추가 비용이 발생할 수 있기 때문에 이를 고려해 계획에 반영했습니다.
공사진행

평면 설계도면과 3D 이미지를 진행해 고객님과 의견을 나누고 반영해 최종 시안이 확정되면 공사를 시작합니다. 공사 전에는 철거를 시행하는데요, 이번 현장은 신규 입주하는 경우여서 철거를 할 필요가 없어 목공 작업을 진행했습니다.
목공 작업은 구조를 나누는 작업과 사무실을 꾸미는 작업으로 나뉘는데 우선은 가벽을 세워 공간을 나누고 동선을 계획하는 구조 공사를 진행합니다. 대표실 공간을 나누는 목공 작업을 하고 유리 가벽과 도어를 고정할 수 있는 틀을 세우는 작업을 하고 있습니다.


가벽을 세운 후에는 조명 교체작업 등의 꾸미는 목공 작업을 진행합니다.

이 단계에서 벽면 알판 작업도 진행하는데요, 알판 작업이란 디자인된 모양을 구현하기 위해 일정한 간격으로 배열하고 모양과 모양간의 경계를 나누는 등의 작업으로 밑그림이라도 할 수 있습니다. 이렇게 알판 작업을 거친 후 페인트 도장으로 마감을 하면 중랑구 신내동 skv1센터 10평 20평 사무실인테리어도 느낌있게! 연출될 수 있답니다.
공사완료



간살 파티션으로 공간과 동선을 나눈 공용 사무실입니다. 천장 일반 형광등을 철거하고 매입형 원형 조명으로 교체해 은은하고 깔끔한 분위기가 조성됐습니다.

대표실 공간입니다. 천장에 매입형 조명을 계획해 통일감을 줌으로써 공간이 더 길고 넓어 보이는 효과가 있습니다. 맞춤 책상과 책장으로 고급스러운 공간으로 시공해드렸고 골드 컬러로 회사명과 로고를 기둥에 부착해 대표실 사무실인테리어도 느낌있게! 만들어 드렸습니다.

다크 그레이로 맞춤장을 제작해 배치한 탕비실 공간입니다. 옷을 수납할 수 있는 키큰장과 물품을 수납할 수 있는 하부장을 계획해 상판은 테이블로 활용할 수 있도록 했습니다. 중랑구 신내동 skv1센터 좁은 평수의 10평 20평 사무실인테리어도 느낌있게! 시공될 수 있다는 것을 확인하셨나요?
#중랑구 신내동 skv1센터 10평 20평 사무실인테리어 #사무실인테리어
공사문의 010-3235-8427
포트폴리오 바로가기▶916er.com
전화주시면 간단한 비용견적 상담부터 현장방문 미팅까지 진행하고 있습니다. 연락주세요.
2021.07.21 - [사무실인테리어] - 화성동탄 샹보르줌타워 지식산업센터 인테리어 시공 평당견적
화성동탄 샹보르줌타워 지식산업센터 인테리어 시공 평당견적
화성동탄 샹보르줌타워 지식산업센터 인테리어 시공 평당견적 공사완료 안녕하세요, 916디자인입니다. 화성동탄 샹보르줌타워 지식산업센터 인테리어 시공 평당견적을 묻는 고객님의 연락이
dopamine7.com
2021.07.20 - [사무실인테리어] - 인천 부평 테크노타워 인테리어, 회사 오피스도 고급스러운 연출로!
인천 부평 테크노타워 인테리어, 회사 오피스도 고급스러운 연출로!
인천 부평 테크노타워 인테리어, 회사 오피스도 고급스러운 연출로! 안녕하세요, 916디자인입니다. 오늘은 인천 부평 테크노타워 인테리어 사례를 소개해드리려고 하는데요, 이 포스팅을 보시
dopamine7.com
2021.07.19 - [사무실인테리어] - 용인 기흥 테라타워 지산 사무실 인테리어 40평 50평 60평 참고하기!
용인 기흥 테라타워 지산 사무실 인테리어 40평 50평 60평 참고하기!
용인 기흥 테라타워 지산 사무실 인테리어 40평 50평 60평 참고하기! 3D 안녕하세요, 916디자인입니다. 오늘은 용인 기흥 테라타워 지산 사무실 인테리어 사례를 소개해드리려고 하는데요, 40평 50평
dopamine7.com
2021.07.18 - [사무실인테리어] - 구리갈매 아너시티 변호사 사무실 공사비용
구리갈매 아너시티 변호사 사무실 공사비용
구리갈매 아너시티 변호사 사무실 공사비용 안녕하세요, 916디자인입니다. 오늘은 구리갈매 아너시티에 변호사 사무실 인테리어 제안을 드렸던 사례를 소개해드리려고 합니다. 같은 사무실 공
dopamine7.com
2021.07.17 - [사무실인테리어] - 광명 국제무역센터 회사 공간분리 작업 및 지식산업센터 인테리어
광명 국제무역센터 회사 공간분리 작업 및 지식산업센터 인테리어
광명 국제무역센터 회사 공간분리 작업 및 지식산업센터 인테리어 안녕하세요, 916디자인입니다. 오늘은 광명 국제무역센터 회사 공간분리 작업 및 지식산업센터 인테리어에 도움이 될만한 사
dopamine7.com
'사무실인테리어' 카테고리의 다른 글
| 가산 에이스골드타워 회사 사무실 인테리어 비용, 대표실 공간분리 효율적으로! (0) | 2021.07.26 |
|---|---|
| 화성 동탄 현대 실리콘앨리 100평 회사 사무실인테리어, 합리적인 비용으로! (0) | 2021.07.25 |
| 하남 희가로 프리미어 지식산업센터 인테리어 공사 비용은 (0) | 2021.07.24 |
| 가산 어반워크2 사무실인테리어, 심플모던 스타일! (0) | 2021.07.23 |
| 화성동탄 샹보르줌타워 지식산업센터 인테리어 시공 평당견적 (0) | 2021.07.21 |
| 인천 부평 테크노타워 인테리어, 회사 오피스도 고급스러운 연출로! (0) | 2021.07.20 |
| 용인 기흥 테라타워 지산 사무실 인테리어 40평 50평 60평 참고하기! (0) | 2021.07.19 |
| 구리갈매 아너시티 변호사 사무실 공사비용 (0) | 2021.07.18 |
- Total
- Today
- Yesterday
- 3D디자인
- 916디자인
- 사무실인테리어전문
- 병원인테리어
- 사무실인테리어업체
- 미용실인테리어
- 사무실리모델링
- 회사인테리어
- 사무실인테리어디자인
- 인테리어
- 사무실인테리어공사
- 사무실인테리어비용
- 학원인테리어
- 사무실인테리어추천
- 오피스인테리어
- 인천사무실인테리어
- 사무실인테리어
- 상가인테리어
- 헬스장인테리어
- 지식산업센터인테리어
- 사무실인테리어잘하는곳
- 사무실인테리어견적
- interior
- 피티샵인테리어
- 헤어샵인테리어
- 사무실인테리어후기
- 3D사무실인테리어
- 학원인테리어디자인
- 인테리어디자인
- 사무실디자인
| 일 | 월 | 화 | 수 | 목 | 금 | 토 |
|---|---|---|---|---|---|---|
| 1 | 2 | 3 | ||||
| 4 | 5 | 6 | 7 | 8 | 9 | 10 |
| 11 | 12 | 13 | 14 | 15 | 16 | 17 |
| 18 | 19 | 20 | 21 | 22 | 23 | 24 |
| 25 | 26 | 27 | 28 | 29 | 30 | 31 |
