티스토리 뷰
목차
양주패션복합단지지식산업센터 의정부 한강듀클래스 사무실인테리어는 전문업체를 통해 완벽하게 시공하세요
3D

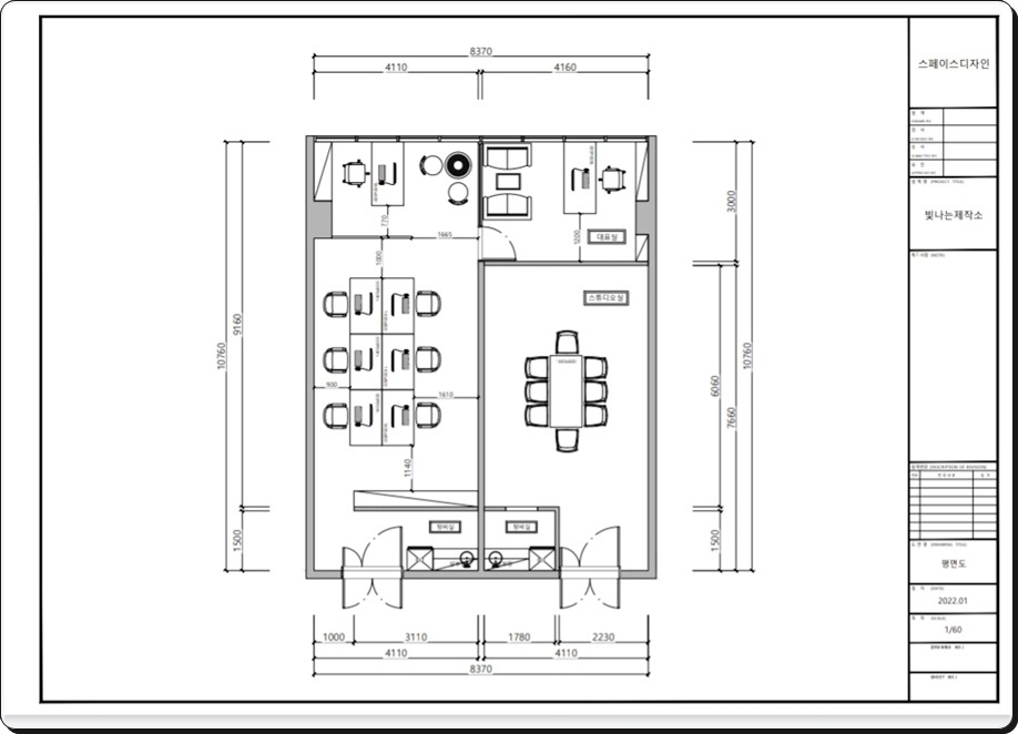
만약, 양주패션복합단지지식산업센터 의정부 한강듀클래스 사무실인테리어를 알아보시고 계시다면 오늘 포스팅이 도움이 되실 것입니다. 이번 현장은 일반 사무실과 회의실로 구성된 디자인설계를 제안드렸는데요, 2개의 실을 나눠 하나는 사무실로 하나는 스튜디오로 사용하고 스튜디오는 작업이 없을 때는 회의실로 활용이 가능하도록 계획했습니다. 일반 평면도면만 보시면 평범한 사무실인테리어처럼 보이셔서 지금 무슨 말을 하는지 정확하게 이해하지 못하실 수 있겠죠.


하지만, 3D 이미지를 보시면 정확하게 이해하실 수 있을실겁니다. 2개의 실을 각 출입구로 다닐 수 있도록 했고 발코니를 확장하고 통합함으로써 하나의 사무실처럼 사용하게 했죠. 그리고 화이트&그레이를 적용해 공간이 넓어보이게 하면서 균형을 이루도록 했고 가장 안쪽에 대표실과 상담실을 두었답니다.
이렇게 916디자인은 인테리어 견적문의를 받으면 현장 실츨 후 디자인설계를 제안드리고 3D 이미지까지 제공해드리고 있습니다. 3D 이미지는 공간의 레이아웃은 물론 자재 느낌, 분위기, 컬러 등의 전반적인 디자인을 확인할 수 있어 최종 시안을 빠르게 확정할 수 있죠. 시안 확정이 빠르면 빠를수록 공정은 철저히 지키면서 공사는 꼼꼼하게 진행할 수 있는 것은 당연하고요, 이는 안전하고 안정적인 인테리어로 나타난답니다.
공사완료


외부 파사드입니다. 블루계열을 메인으로 하고 사무실은 유리도어를 적용해 내부 파사드가 외부 익스테리어로 적용되도록 했고 스튜디오는 철문으로 시공했습니다. 사무실 내부에는 가벽을 세워 내부로의 시선을 차단함으로써 방문객을 관리하고 업무 효율을 높일 수 있도록 했습니다. 내부 파사드 벽면에는 파란색 선반을 시공해 심플하면서 세련된 디자인으로 구현했고 이 선반은 홍보 및 마케팅 공간으로 활용할 수 있답니다.

내부 파사드 벽면 뒤쪽은 제작 수납장을 시공해 파티션형 가벽으로 사용할 수 있도록 했습니다. 오픈형 수납장과 하부장으로 다양한 수납이 가능하도록 했고 오픈형 수납장에는 책을 꽂거나 소품을 두면 색다른 인테리어를 완성할 수 있습니다. 전체적으로 화이트 벽면으로 마감하고 테라조 타일 바닥으로 시공해 화사하면서 균형감 있는 사무실로 구성했습니다.
매립형 조명을 적용해 깔끔한 천장으로 연출하면서 높은 층고를 확보함으로써 쾌적한 공간이 되도록 했습니다. 양주패션복합단지지식산업센터 의정부 한강듀클래스 사무실인테리어를 구상하실 때는 공간의 균형감과 쾌적성을 고려한 디자인을 계획하고 시공하는 것이 중요하므로 디자인력과 시형력을 갖춘 전문업체에 문의하세요.



스튜디오는 회의실 및 촬영 스튜디오로 활용하는 공간임을 고려해 출입문을 강화문 안쪽에 파사드와 같은 블루계열의 철문으로 시공해 외부에서 봤을 때, 하나의 공간으로 인식되도록 했습니다.


내부는 전체적으로 화이트 컨셉트로 시공했고 외벽 일부를 익스테리어에 사용한 블루로 도장해 포인트를 주면서 크로마키 촬영이 가능하도록 했습니다. 벽면은 고급스러운 웨인스코팅을 넣은 벽면으로 시공하고 바닥은 마블 패턴의 화이트로 마감했으며 아치형 공틀과 가벽을 시공해 탕비공간을 구성했습니다.


조명은 인테리어와 어울리는 화이트 레일조명을 천장에 시공해 공간이 더욱 화사해 보이도록 했습니다. 화이트의 확장성에 밝은 조명이 더해져 화사한 분위기를 연출하면 공간이 더 넓어 보이고 그러면서 쾌적함을 느낄 수 있답니다. 양주패션복합단지지식산업센터 의정부 한강듀클래스 사무실인테리어를 하실 때, 면적이 좁거나 낮다면 화이트를 메인으로 활용하고 포인트 요소를 적용하신다면 멋진 공간을 꾸밀 수 있겠죠.


회의실로 사용하거나 촬영을 진행할 때 무리가 없도록 바닥에 전기 공사를 충분히 했답니다. 벽면에 콘센트를 시공하면 촬영 시 배경에 방해가 될 수 있어 바닥에 시공하고 선을 깔끔하게 정리할 수 있도록 함으로써 추후 사무실로도 사용할 수 있도록 했습니다.
오늘 포스팅을 보시고 궁금한 점이 있으시거나 사무실 인테리어를 계획 중이시라면 저희 916디자인으로 문의해주세요. 다양한 형태의 수많은 사무실인테리어를 진행해오면서 쌓은 경험을 바탕으로 고객님이 원하시는 1:1맞춤인테리어를 합리적이고 퀄리티 높게 제공해드리겠습니다.
#양주패션복합단지지식산업센터 의정부 한강듀클래스 사무실인테리어 #사무실인테리어
공사문의 010-3235-8427
포트폴리오 바로가기▶916er.com
전화주시면 간단한 비용견적 상담부터 현장방문 미팅까지 진행하고 있습니다. 연락주세요.
2022.03.02 - [사무실인테리어] - 대전 대덕벤처타워 윕스퀘어 대덕테크노밸리 사무실인테리어, 고급스러운 구성을 위해!
대전 대덕벤처타워 윕스퀘어 대덕테크노밸리 사무실인테리어, 고급스러운 구성을 위해!
대전 대덕벤처타워 윕스퀘어 대덕테크노밸리 사무실인테리어, 고급스러운 구성을 위해! 공사완료 사업을 영위하시는 사업주분들께서, 올해에는 더욱 고급스러운 사무실의 공간을 구성하시고
dopamine7.com
2022.02.28 - [사무실인테리어] - 광주 포스크 더 센텀하이테크 마루힐IBC지식산업센터 사무실인테리어, 만족스러운 결과를!
광주 포스크 더 센텀하이테크 마루힐IBC지식산업센터 사무실인테리어, 만족스러운 결과를!
광주 포스크 더 센텀하이테크 마루힐IBC지식산업센터 사무실인테리어, 만족스러운 결과를! 사무실의 공간을 더욱 만족스럽게 꾸미고 싶으신 분들이 많지 않을까 생각됩니다. 그렇기 때문에, 오
dopamine7.com
2022.02.27 - [사무실인테리어] - 대전 펜타플렉스 세종 대명벨리온 지식산업센터 사무실인테리어 유니크하게 진행하세요.
대전 펜타플렉스 세종 대명벨리온 지식산업센터 사무실인테리어 유니크하게 진행하세요.
대전 펜타플렉스 세종 대명벨리온 지식산업센터 사무실인테리어 유니크하게 진행하세요. 3D 사무실 인테리어는 업종이나 업체의 특색에 따라 디자인설계가 달라지기 때문에 각각의 개성을 살
dopamine7.com
2022.02.26 - [사무실인테리어] - 대구 태왕 아파시티 수성 서대구 D디원시티 사무실인테리어 통합형으로 효율적이게!
대구 태왕 아파시티 수성 서대구 D디원시티 사무실인테리어 통합형으로 효율적이게!
대구 태왕 아파시티 수성 서대구 D디원시티 사무실인테리어 통합형으로 효율적이게! 3D 최근 공간의 활용을 다양하게 할 수 있고 직원간의 소통, 교류, 공유 등에 유리하다는 장점이 있는 통합형
dopamine7.com
2022.02.25 - [사무실인테리어] - 평택 삼성에이아이센터 스마트시티 사무실인테리어 수납력 높게 시공하세요
평택 삼성에이아이센터 스마트시티 사무실인테리어 수납력 높게 시공하세요
평택 삼성에이아이센터 스마트시티 사무실인테리어 수납력 높게 시공하세요 3D 평택 삼성에이아이센터 스마트시티 사무실인테리어를 구상 중이신데 공간은 넓게 활용하면서 수납력은 충분히
dopamine7.com
'사무실인테리어' 카테고리의 다른 글
| 성남 분당 판교 SK V1 센트럴 비즈타워 사무실인테리어를 통해 브랜드 이미지를 바꿔보세요 (6) | 2022.03.09 |
|---|---|
| 부천 옥길동 원미동 BK테크노밸리 서영 아너시티2 사무실인테리어 글래스 가벽과 우드로 시공하세요 (0) | 2022.03.08 |
| 성동구 성수동 페코텍 글로벌허브 서울숲 비즈포레 사무실인테리어, 우드톤으로 고급스럽고 편안하게 시공하세요 (0) | 2022.03.07 |
| 춘천 하이테크타워 사무실인테리어 실용적으로 구성하고 싶으시다면 전문업체에 맡기세요 (0) | 2022.03.06 |
| 가산 ypp아르센타워 에이스 태세라타워 사무실인테리어, 심플한 화이트 & 우드로 연출하기~ (0) | 2022.03.04 |
| 용인 기흥 ICT밸리 흥덕 IT밸리 사무실인테리어 포인트와 실용성을 살리세요 (0) | 2022.03.03 |
| 대전 대덕벤처타워 윕스퀘어 대덕테크노밸리 사무실인테리어, 고급스러운 구성을 위해! (0) | 2022.03.02 |
| 광주 포스크 더 센텀하이테크 마루힐IBC지식산업센터 사무실인테리어, 만족스러운 결과를! (0) | 2022.02.28 |
- Total
- Today
- Yesterday
- 피티샵인테리어
- 인테리어디자인
- 미용실인테리어
- 병원인테리어
- 오피스인테리어
- 사무실인테리어
- 3D디자인
- 사무실인테리어비용
- 사무실인테리어견적
- 사무실인테리어업체
- 헤어샵인테리어
- 사무실리모델링
- 사무실인테리어추천
- 사무실인테리어공사
- 사무실인테리어후기
- 상가인테리어
- 지식산업센터인테리어
- 사무실인테리어전문
- 3D사무실인테리어
- 학원인테리어
- interior
- 916디자인
- 인천사무실인테리어
- 학원인테리어디자인
- 사무실인테리어디자인
- 회사인테리어
- 사무실디자인
- 인테리어
- 헬스장인테리어
- 사무실인테리어잘하는곳
| 일 | 월 | 화 | 수 | 목 | 금 | 토 |
|---|---|---|---|---|---|---|
| 1 | 2 | 3 | 4 | 5 | 6 | |
| 7 | 8 | 9 | 10 | 11 | 12 | 13 |
| 14 | 15 | 16 | 17 | 18 | 19 | 20 |
| 21 | 22 | 23 | 24 | 25 | 26 | 27 |
| 28 | 29 | 30 | 31 |
