티스토리 뷰
목차
강서구 등촌동 아리스타 여성 사무실인테리어, 핑크톤의 이색연출
안녕하세요, 916디자인입니다. 오늘은 강서구 등촌동 아리스타에 입주예저이신 분들 중 여성 대표님 혹은 여성을 타깃으로 하는 기업사무실인테리어에 안성마춤인 디자인 제안을 소개해드리려고 합니다. 핑크톤의 이색연출로 강렬한 이미지를 전달할 수 있는 인테리어 디자인으로 최근 특정 타깃을 위한 기업에 많은 도움이 될만한 인테리어입니다.
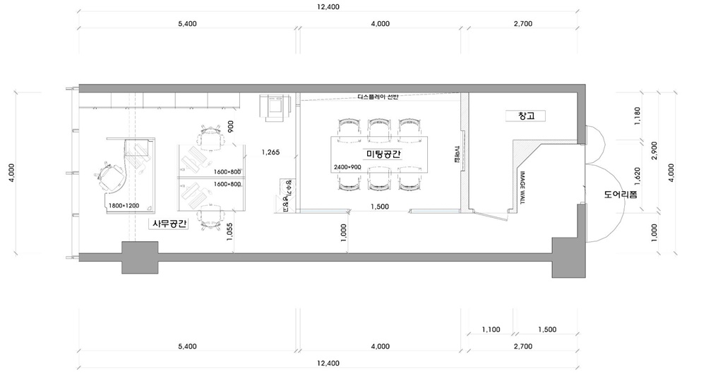
여성성이 강한 핑크톤으로 연출을 했지만 배색을 바꾼다든가 컬러를 바꾼다면 어떤 기업에도 어울릴 최신 인테리어 트렌드를 반영했습니다. 설계도를 보시면 길다란 직사각형의 단조로운 평면으로 레이아웃으로만 보면 자칫 밋밋한 공간으로 인테리어될 수 있는 공간입니다.
3D


그래서 저희 916디자인은 3D 이미지도 함께 제공해드리고 있습니다. 인테리어 의뢰를 받으면 미팅을 진행한 후 고객님의 니즈를 파악하고 해당 기업의 특성을 분석해 디자인 설계에 적극적으로 반영한 후 최적의 레이아웃을 제안드리는데요, 일반 설계도면으로만 보면 앞에서 언급했듯 그냥 일반적인 공간일 수 있지만 소재, 컬러, 디자인 등이 반영된 3D 이미지를 보시면 완전히 다른 공간임을 쉽게 이해할 수 있답니다.
평면 설계와는 완전히 다른 분위기의 아이소 도면입니다. 아이소 도면이란 평면의 설계 도면을 입체화한 후 위에서 내려다 본 도면으로 이 정도만 확인하셔도 대략적인 인테리어 분위기를 파악할 수 있습니다.

하지만 저희는 실제로 시공될 모습을 3D 이미지를 함께 작업해 제공해드리고 있으니 이 점을 적극적으로 활용해 보시기 바랍니다. 고객님은 평면도면을 보면서 레이아웃을 확인하시고 3D 이미지를 보면서 디테일한 디자인을 확인하면서 수정 보완을 요청하시면 훨씬 더 빠르고 정확하게 디자인을 확정할 수 있습니다.
입구 파사드 역시 3D 이미지로 디자인을 보여드리고 있는데요, 여성 사무실인테리어인만큼 핑크톤의 이색연출을 해봤습니다. 강서구 등촌동 아리스타에 입주 예정이신 여성 기업인들께서 눈여겨 봐주시면 좋을듯 하네요. 물론, 무조건 핑크 연출을 해드리지는 않습니다. 이 기업은 뷰티 관련 업종이기 때문에 핑크 연출을 원하셨지만 다른 컬러를 요청하시거나 제안을 원하신다면 최신 트렌드를 고려해 디자인 설계에 반영하고 있습니다.

입구로 들어가면 보이는 벽면 파사드입니다. 뷰티 관련 제품을 연구 개발하는 회사의 특성상 창고가 필요했는데요, 이를 눈에 보이지 않게 배치하면서 효율적인 동선을 짜기 위해 목공 작업으로 이미지월과 복도를 제안드렸습니다. 복도를 시공하면 벽면을 홍보 및 마케팅의 공간으로도 활용할 수 있다는 장점이 있어 연구 및 제조업 사무실 인테리어에 많이 적용되고 있는 추세입니다.

내부로 진입하면 핑크톤의 이색연출이 돋보이는 회의실 공간을 만날 수 있습니다. 최근에는 보안이 중요한 기업일수록 회의실 공간을 입구측에 배치하시기를 많이 제안드리는데요,
이는 방문객 동선을 최소한으로 제한하기 위함이랍니다. 보안이 아니더라도 방문객 동선은 최소화할수록 직원들의 집중도는 올라가고 이는 업무 성과로도 나타날 수 있어 고객님들께서도 적극적으로 동의하시는 부분이랍니다. 대신 회의실은 방문객 응대는 물론 쇼룸으로도 활용할 수 있으면서 직원들의 휴식 및 자유로운 업무 진행도 가능할 수 있도록 세심한 배려를 하고 있습니다.

회의실 3D 이미지입니다. 가벽은 낮게 디자인해 답답하지 않으면서 조명과 냉난방 시스템을 공유할 수 있도록 했고 불투명 유리를 적용해 개방적이면서 독립적인 공간으로 계획했습니다. 벽면으로 하부장을 계획해 수납력을 높였고 상부는 간접 조명이 적용된 선반으로 계획해 제품을 진열할 수 있도록 디자인했습니다.

아무리 여성 사무실인테리어라고 전체를 핑크톤으로 연출한다면 질릴 수 있지만 이렇게 사무 공간은 깔끔한 화이트톤으로 마무리하고 바닥은 그레이톤을 적용하면 화사하면서 차분한 사무실 분위기를 조성할 수 있습니다. 특히, 소형 평수의 사무실이라면 수납을 위해 키큰장을 배치하지 말고 책상 높이와 비슷한 하부장을 계획하면 공간을 더욱 넓고 쾌적하게 사용할 수 있습니다.
또한, 전체 마감 컬러와 가구 컬러를 통일하면 확장감을 부여할 수 있어 더욱 넓은 느낌이 들 수 있답니다. 강서구 등촌동 아리스타에 입주 예정이시거나 여성 사무실인테리어를 구상 중이시라면 저희 916디자인으로 문의해 주세요. 전문 디자이너를 배정해 최적의 디자인설계를 제안드리고 합리적인 견적으로 최고의 시공을 진행해드리겠습니다.
#강서구 등촌동 아리스타 여성 사무실인테리어 #사무실인테리어
공사문의 010-3235-8427
포트폴리오 바로가기▶916er.com
전화주시면 간단한 비용견적 상담부터 현장방문 미팅까지 진행하고 있습니다. 연락주세요.
2021.07.26 - [사무실인테리어] - 가산 에이스골드타워 회사 사무실 인테리어 비용, 대표실 공간분리 효율적으로!
가산 에이스골드타워 회사 사무실 인테리어 비용, 대표실 공간분리 효율적으로!
가산 에이스골드타워 회사 사무실 인테리어 비용, 대표실 공간분리 효율적으로! 안녕하세요, 916디자인입니다. 오늘은 가산 에이스골드타워 회사 사무실 인테리어 비용을 알아보고 합리적인 견
dopamine7.com
2021.07.25 - [사무실인테리어] - 화성 동탄 현대 실리콘앨리 100평 회사 사무실인테리어, 합리적인 비용으로!
화성 동탄 현대 실리콘앨리 100평 회사 사무실인테리어, 합리적인 비용으로!
화성 동탄 현대 실리콘앨리 100평 회사 사무실인테리어, 합리적인 비용으로! 안녕하세요, 916디자인입니다. 오늘은 화성 동탄 현대 실리콘앨리에 입주 예정이시거나 100평 회사 사무실인테리어 및
dopamine7.com
2021.07.24 - [사무실인테리어] - 하남 희가로 프리미어 지식산업센터 인테리어 공사 비용은
하남 희가로 프리미어 지식산업센터 인테리어 공사 비용은
하남 희가로 프리미어 지식산업센터 인테리어 공사 비용은 공사완료 안녕하세요, 916디자인입니다. 오늘은 하남 희가로 프리미어 지식산업센터 인테리어 사례를 통해 공사 비용은 어떻게 책정
dopamine7.com
2021.07.23 - [사무실인테리어] - 가산 어반워크2 사무실인테리어, 심플모던 스타일!
가산 어반워크2 사무실인테리어, 심플모던 스타일!
가산 어반워크2 사무실인테리어, 심플모던 스타일! 안녕하세요, 916디자인입니다. 오늘은 가산 어반워크2에 입주 예정이시거나 사무실인테리어를 계획 중이신 분들을 위해 심플모던 스타일!의
dopamine7.com
2021.07.22 - [사무실인테리어] - 중랑구 신내동 skv1센터 10평 20평 사무실인테리어도 느낌있게!
중랑구 신내동 skv1센터 10평 20평 사무실인테리어도 느낌있게!
중랑구 신내동 skv1센터 10평 20평 사무실인테리어도 느낌있게! 안녕하세요, 916디자인입니다. 오늘은 중랑구 신내동 skv1센터의 10평 20평 사무실인테리어도 느낌있게! 연출할 수 있는 방법에 대해
dopamine7.com
'사무실인테리어' 카테고리의 다른 글
| 동탄 M엠타워 50평 60평 사무실인테리어 지산사무실 디자인 (0) | 2021.08.04 |
|---|---|
| 남양주 별내 블루오션 촬영스튜디오 사무실인테리어 디자인, 특별함을 원한다면! (0) | 2021.08.03 |
| 김포 장기동 경동미르웰시티 사무실인테리어 시공업체 추천! (0) | 2021.08.02 |
| 구로 skv1센터 사무실인테리어, 리모델링 참고하세요! (0) | 2021.08.01 |
| 가산 테라타워 변호사 사무실인테리어 추천, 공사비용은 (0) | 2021.07.27 |
| 가산 에이스골드타워 회사 사무실 인테리어 비용, 대표실 공간분리 효율적으로! (0) | 2021.07.26 |
| 화성 동탄 현대 실리콘앨리 100평 회사 사무실인테리어, 합리적인 비용으로! (0) | 2021.07.25 |
| 하남 희가로 프리미어 지식산업센터 인테리어 공사 비용은 (0) | 2021.07.24 |
- Total
- Today
- Yesterday
- 사무실인테리어추천
- 지식산업센터인테리어
- 사무실인테리어후기
- 사무실인테리어업체
- 학원인테리어디자인
- 사무실인테리어전문
- 병원인테리어
- 인테리어디자인
- 사무실인테리어비용
- 미용실인테리어
- 오피스인테리어
- 사무실리모델링
- 상가인테리어
- interior
- 피티샵인테리어
- 사무실인테리어잘하는곳
- 사무실인테리어공사
- 인천사무실인테리어
- 헤어샵인테리어
- 인테리어
- 3D사무실인테리어
- 사무실인테리어디자인
- 사무실인테리어
- 회사인테리어
- 사무실디자인
- 사무실인테리어견적
- 헬스장인테리어
- 학원인테리어
- 3D디자인
- 916디자인
| 일 | 월 | 화 | 수 | 목 | 금 | 토 |
|---|---|---|---|---|---|---|
| 1 | 2 | 3 | 4 | 5 | 6 | 7 |
| 8 | 9 | 10 | 11 | 12 | 13 | 14 |
| 15 | 16 | 17 | 18 | 19 | 20 | 21 |
| 22 | 23 | 24 | 25 | 26 | 27 | 28 |
| 29 | 30 | 31 |
